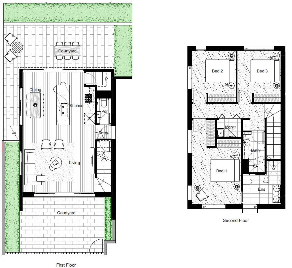
Introducing loft style living at YarraBend. Paying homage to YarraBend’s industrial past, The Mills Lofts facades feature brick bookends, taking inspiration from the sawtooth roofs traditionally founds on old factories.
Enjoy all the best aspects of Melbourne’s urban lifestyle, right down to laneways and tree-lined walkways. These designer residences are located in the centre of YarraBend, just a short walk from the planned health and wellness centre and artisan food precinct.
Contrasting raw materials and refined finishes create a new standard of urban cool in these homes. Choose between two schemes, Manhattan and Brooklyn. Both feature contrasting tones and generously-textured natural materials to create a refined industrial look.
Premium appliances by Smeg, sinks by Franke and ample storage and bench space complete the smart, modern design that makes the kitchen a highlight.




